|  (351) 328-97-07 mzsa@uralparm.ru 
 
 |   Стоимость передвижной мастерской АРОК, АНРВ - от 765 000 руб! Автомастерские серий АНРВ, МАРС и АРОК - в первую очередь являются автомобилями ремонтных служб, оснащенными кузовом-фургоном с необходимым оборудованием, местами для перевозки бригады (до 6 человек), грузовым отсеком и гидроманипулятором. 
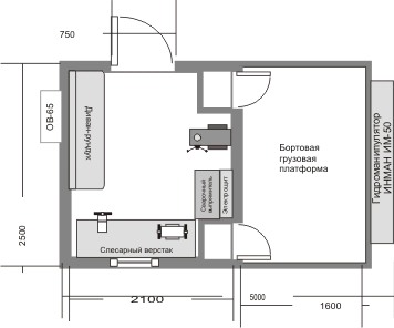
 Передвижная мастерская АНРВ. Автомастерские серии АНРВ применяются в нефтегазодобыче для ремонта водоводов и технологических трубопроводов, а также в городских тепловых сетях и службах водоснабжения. Спецавтомобиль АНРВ представляет собой кузов-фургон с грузовым отсеком и гидроманипулятором, смонтированные на полноприводные шасси УРАЛ или КАМАЗ. АНРВ оснащаются генераторной установкой с приводом от трансмиссии или автономным сварочным агрегатом типа АДД-4004 или аналогом. Мастерская АНРВ поставляется с кабиной вместимостью 3 или 6 человек, дополнительно 3 человека могут перевозиться в фургоне. 
 Передвижная мастерская АРОК Автомастерские АРОК применяются в нефтедобывающей отрасли и предназначены  для ремонта и обслуживания станков-качалок. Автомобили АРОК внешне аналогичны АНРВ, но оснащены более мощным манипулятором и набором специфического оборудования (оборудование для замены смазки в редукторах, окрасочное оборудование, газоэлектросварка и т.п.). Мастерские АРОК обычно устанавливаются на трехосные полноприводные шасси УРАЛ и КАМАЗ. 
 Автомастерские АОП, АОЭ Передвижные мастерские серии АОП (агрегат обслуживания подъемников), АОЭ (агрегат обслуживания электроустановок) являются разновидностями машин серий АНРВ и АРОК, и отличаются от них перечнем стационарно установленного оборудования. 
 Основные преимущества передвижных мастерских АРОК, АНРВ, АОП, 2АОП
 
 
 Автомастерские с гидроманипуляторами АНРВ АРОК МАРС     Технические характеристики
 
 Отправить запрос
 | |||||||||||||||||||||||||||||||||||||||||||||||||||||||||||||||||||||||||||||